Добро пожаловать на http://vipplan.ru

Випплан Березники - это тысячи проектов домов в нашем каталоге!

Вы всегда сможете найти для себя проект дома вашей мечты! Даже если этого не случилось, мы готовы в любую минуту предложить проект индивидуального дома.

Забыли пароль?
Вы еще не регистрировались?

Перейдите по ссылке ниже на страницу регистрации.

Регистрация...

Внимание!!!

В проектную документацию могут быть внесены изменения любой сложности, в соответствии в Вашими пожеланиями!

Полезные статьи

Советы по проектированию дома

Представляем Вашему вниманию несколько советов по проектированию дома. Все что касается выбора участка, размещению дома на участке, подбора проекта на строительство дома, советы по выбору технологии строительства и материалов и т.д....

Выбор бригады строителей в Березниках

Перед началом строительства дома перед будущим хозяином загородной недвижимости в Пермской области обозначится несколько вариантов: обратиться в строительную компанию, специализирующуюся на малоэтажном коттеджном строительстве, воспользоваться услугами частной бригады; строить самому "своими руками"....

Проекты домов и коттеджей > Каталог проектов домов > Одноэтажный дом с мансардой, просторной гостиной и четырьмя спальнями Vg3964

Одноэтажный дом с мансардой, просторной гостиной и четырьмя спальнями Vg3964

Одноэтажный дом с мансардой, просторной гостиной и четырьмя спальнями
Зарегистрируйтесь

Проект № Vg3964


Техническое описание
Общая площадь: 187.48 м2
Жилая площадь: 94.13 м2
Высота здания: 9.66 м
Размеры дома: 16.18м×17.39м
Кол-во комнат: 6
Цокольный этаж: нет
Гараж: нет
Мансарда: есть

Kонструкция
Фундамент: монолитная плита
Перекрытия: деревянные балки

Цена проекта: АР+КР - 60 000
Одноэтажный дом с мансардой, просторной гостиной и четырьмя спальнями с размерами здания 16,18 х 17,39 м. Фундамент - монолитная ж/б плита под всей площадью дома (мелкозаглубленная). Наружные стены –газобетонные блоки с вентилируемым воздушным зазором и отделкой сайдингом Внутренние стены – газобетонные блоки. Перегородки 1 этажа - газобетонные блоки, мансарды - каркасные с ГКЛ на металлическом каркасе. Пол 1 этажа – по плите. Межэтажное перекрытие - деревянные балки с теплошумоизоляцией в межбалочном пространстве. Крыша многоскатная. Кровля – металлочерепица. Окна — металлопластиковые.
Генплан застройки участка / Паспорт проекта 7000 руб / 10000 руб
Инженерный раздел (полный) 93500 руб
Смета на строительство 46750 руб
Теплотехнический расчет материалов стен Бесплатно
Стоимость проекта со незначительнми изменениями 47800 руб
Стоимость проекта со средними изменениями* 84400 руб
Стоимость проекта со значительными изменениями** 88100 руб

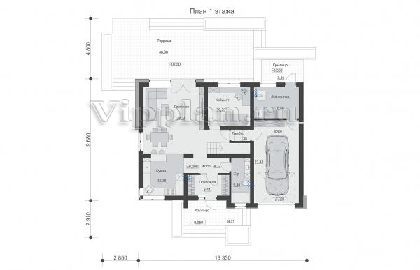
План первого этажа


Прихожая - 5,45 м2
С/у - 5,40 м2
Кухня - 10,38 м2
Гараж - 23,43 м2
Бойлерная - 8,88 м2
Гостиная - 15,43 м2
Кабинет - 10,39 м2
Тамбур - 1,35 м2
Холл - 4,32 м2

План мансардного этажа


Холл - 0,94 м2
Холл - 6,38 м2
Спальня - 17,50 м2 (20,77 м2)
Спальня - 12,92 м2 (14,00 м2)
Спальня - 12,97 м2 (13,98 м2)
Спальня - 12,01 м2
С/у - 4,83 м2 (5,36 м2)
Гардероб- 5,12 м2 (5,69 м2)
Ванная - 10,39 м2
Постирочная - 2,70 м2 (3,12 м2)
Гардероб- 3,78 м2 (4,79 м2)
Одноэтажный дом с мансардой, просторной гостиной и четырьмя спальнями Одноэтажный дом с мансардой, просторной гостиной и четырьмя спальнями Одноэтажный дом с мансардой, просторной гостиной и четырьмя спальнями Одноэтажный дом с мансардой, просторной гостиной и четырьмя спальнями
Внесение изменений и привязка к участку строительства

В любой из проектов от компании VIPplan - Березники по вашему желанию могут быть внесены изменения в материалы стен, материалы наружной отделки дома, а также будет произведена адаптация проекта под конкретный регион строительства (с учетом грунтов региона, геологических особенностей вашего участка и местных климатических условий) - БЕСПЛАТНО !!! (кроме проектов со скидкой и проектов наших партнеров).

Любой из проектов, размещенных на сайте berezniki.vipplan.ru мы можем выполнить из требуемых вам строительных материалов: ячеистый бетон (газобетон, пеноблок), керамоблок, кирпич, шлакоблок, бетонный блок, дерево (брус, клееный брус), каркасная технология (деревянный каркас, металлокаркас (ЛСТК)).

Фасад дома и его наружную отделку так же возможно выполнить с применением различных облицовочных материалов: структурной штукатурки, (с утеплителем и без), сайдингом (пластиковый или металлосайдинг), фиброплитами, кирпича.

 
6 Избранные
проекты

Доставка проектов по России: Москва (Московская область), Санкт-Петербург (Ленинградская область), Краснодар, Ростов-на-Дону, Ставрополь, Сочи, Волгоград, Новосибирск, Белгород, Брянск, Воронеж, Саратов, Хабаровск, Астрахань, Нальчик, Владикавказ, Екатеринбург, Тюмень, Самара, Нижний Новгород, Казань, Пермь, Уфа, Челябинск, Красноярск, Ханты-Мансийск, Иркутск, Курган, Оренбург, Омск, Томск, Барнаул, Новокузнецк, Кемерово, Абакан, Чита, Якутск, Южно-Сахалинск, Петропавловск-Камчатский и страны ближнего зарубежья: Белоруссия, Украина, Казахстан